Jardim na laje e aproveitamento inteligente do terreno em declive
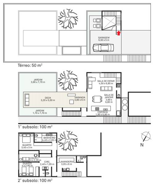
O desnível de 9 m foi o ponto de partida para a implantação inteligente desta casa de condomínio cheia de lições de economia.
“O desafo não está em vencer o declive do lote, mas em aproveitá-lo da melhor forma para conquistar espaços gostosos e erguer uma moradia fnanceiramente viável.” Esse princípio do arquiteto Frederico Zanelato sintetiza o projeto de 250 m2 em Mogi das Cruzes, SP, que aposta no uso racional de materiais e ensina a economizar na obra – o m2 saiu por R$ 1 350
Como o arquiteto respeitou o terreno
Não foi necessário convencer os proprietários de que a solução ideal seria respeitar ao máximo a topografa do solo e construir abaixo do nível da rua, distribuindo os ambientes em três pavimentos. “Eu e meu marido sabíamos que mexer demais na terra custa caro”, revela a doutora em engenheira aeronáutica Aline Capella. “Seguir à risca o projeto executivo, que especifca inclusive o tipo de papeleira do banheiro, também ajudou a conter gastos”, completa ela. A preocupação em deixar a casa confortável, com ambientes iluminados e arejados, se traduz nas aberturas envidraçadas determinadas após um estudo minucioso da incidência do sol e dos ventos. “A vista para o entorno arborizado do bairro e os jardins que pontuam a morada toda evitaram áreas monótonas”, acrescenta Frederico.
Custo dos itens principais
















