Graças aos vãos amplos, a casa parece flutuar
Perfeita para os momentos de lazer, esta casa no interior do Paraná é um verdadeiro desafio à gravidade. Isso graças à volumetria e aos vãos sem pilares.
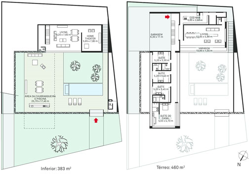
Da leve inclinação do terreno, veio a ideia de uma residência com o pavimento principal em balanço para reservar mais espaço ao lazer, no nível inferior. “Ancorei a casa no declive”, diz o arquiteto paranaense Guilherme Torres. “Assim, liberei o terreno embaixo para o jardim, a piscina e as salas de convivência.” O relevo irregular, com desnível de quase 3 m, foi vencido por um monumental bloco de concreto protendido, que contém cabos de aço de alta resistência tracionados e presos dentro da própria laje. Esse recurso permitiu o vão livre de 17,50 m, além dos 4,50 m em balanço que ultrapassam os limites do lote. Suspensa e sem pilares, a construção traz em suas formas retas, puras e simples os princípios ditados pelo franco-suíço Le Corbusier (1887- 1965), um dos mestres da arquitetura moderna. “Costumo seguir à risca os mandamentos dele”, fala Guilherme. Em contraste com a alvenaria branca, revestimentos de pedra e madeira têm o poder de aquecer o visual sem romper com o ar contemporâneo da proposta. “Como são naturais, carregam certa rusticidade e promovem aconchego”, pondera o autor. O funcionamento independente entre os andares foi outra solução acertada. Normalmente, os moradores usam só o térreo, acessado pela rampa lateral da garagem até o hall superior, de onde parte a distribuição para todos os ambientes. Mas nos fins de semana gostam de acolher a família numerosa em encontros regados a quitutes árabes na espaçosa e confortável área de lazer. Sorte dos convidados!















