Com mobiliário essencial, flat de 33 m² fica amplo e funcional
Projeto em Moscou dividiu o espaço em blocos com foco nas funções que cada área cumpre
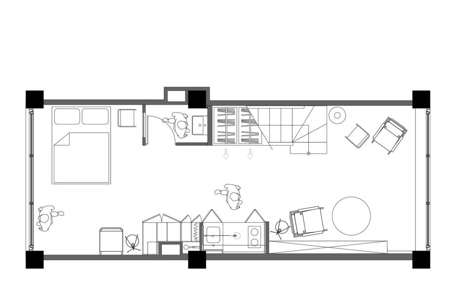
Este é um flat compacto e multifuncional projetado pelo Studio Bazi. O projeto foi comissionado por um homem solteiro que queria atualizar o interior de seu pequeno apartamento de 33 m², transformando-o em um espaço onde todos os lugares atendem às necessidades humanas modernas.
Localizado em uma antiga casa no centro de Moscou, o projeto consiste em blocos precisamente organizados, incluindo uma cozinha e lavanderia, estante de livros, guarda-roupa e depósito.
A estante de livros foi inserida ao longo da parede, entre o bloco da cozinha e as janelas. Com o objetivo de liberar as aberturas de qualquer obstáculo, foi previsto um afastamento entre a estante e o plano das janelas, criando um espaço para pendurar cadeiras extras para os hóspedes.
Como as paredes originais são antigas e podem não aguentar, a estrutura da estante foi reforçada com pernas de aço inoxidável para suportar as cargas de seu próprio peso e dos livros.
No bloco de carvalho fica a cozinha, que fica resguardada por portas camarão, com espaço suficiente para as necessidades do cliente, incluindo um espaço para vegetais com ventilação, escorredor de pratos, mesa retrátil e geladeira.
Próximo a este bloco se encontra um armário com máquina de lavar e equipamentos necessários da área de serviços. Uma cortina embutida neste bloco separa o dormitório e o banheiro da área de estar, fazendo deles um lugar mais aconchegante e privativo.
A partir do design de objetos, cada elemento da cozinha foi projetado e construído. Uma janela redonda em um pequeno banheiro dá vista para a rua e amplia o espaço interno. Próximo ao chuveiro, um bloco pintado de branco abriga um armário debaixo da escada. A maior parte do mobiliário utilizado neste flat é datada da década de 1930.
Veja todas as fotos do projeto na galeria
*Via Archdaily







































