Clássico e contemporâneo se misturam em harmonia neste apê em Paris
Projetada por NAME architects, a reforma do imóvel tornou a distribuição dos espaços mais proporcional e trouxe mais luz natural à área de estar
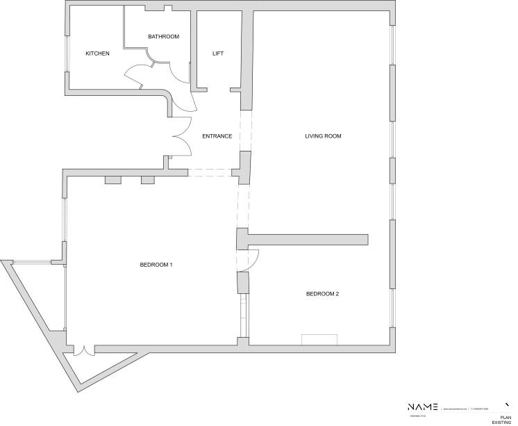
Localizado em Paris, este apartamento pertencia a um antiquário que havia criado um grande quarto de estilo imperial, forrado com belos painéis de madeira e marchetaria. Com 40 m², o espaço era desproporcional ao restante do imóvel, cuja metragem total é de 120 m² e que comportava ainda uma cozinha pequena, um banheiro e áreas de estar.
Depois de viver assim por alguns anos, os moradores decidiram que finalmente era hora de repensar parcialmente o layout interno e as proporções dos espaços para acomodar sua família e estilo de vida em crescimento. Havia uma solicitação: preservar o estilo Haussmann Parisiense.
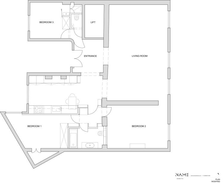
Desafiados a reconfigurar toda a planta baixa e agregar cômodos mais proporcionais, os arquitetos do escritório NAME architecture criaram um terceiro quarto e banheiro. A abertura de um arco entre a nova cozinha e a sala de estar, intocada, permitiu uma maior entrada de luz natural ao ambiente.
“Ao manter parte da ornamentação original de madeira nas paredes, incorporando trabalhos de marcenaria precisos e introduzindo espaço de armazenamento inteligente, o uso prático do apartamento foi maximizado criando continuidade e respeitando o encanto original do espaço”, contam os profissionais.
Quanto ao décor, as novas intervenções são contemporâneas. A seleção de materiais atemporais, como carvalho e mármore, fornece uma sensação de continuidade clássica ao design moderno. “O contraste criado entre as novas inserções e as características clássicas existentes realça estas últimas e dá ao apartamento uma nova perspectiva sobre o seu encanto clássico, criando diálogo e continuidade entre o antigo e o novo”, explicam os arquitetos.
Veja mais fotos e detalhes na galeria abaixo:





* Published with BowerBird





