Casa em Melbourne ganha edícula de 45 m²
Bem iluminada, a extensão da casa comporta uma cozinha, área de jantar e lavanderia em harmonia com a construção principal e parte externa
A Tetris Extension, no interior de Melbourne, Austrália, é uma adição compacta concluída no início de 2018. Os clientes, um jovem casal com dois filhos pequenos, precisavam de mais espaço e por isso foram atrás dos profissionais da Crosshatch.
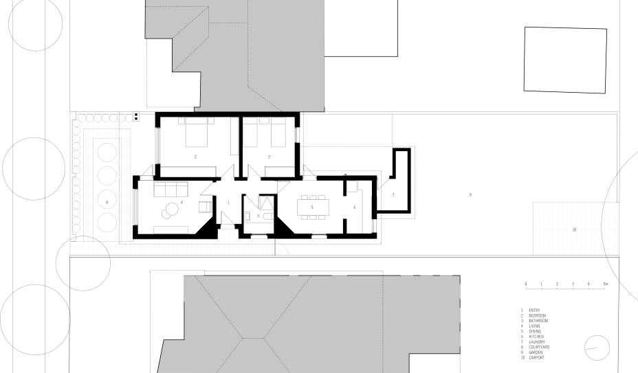
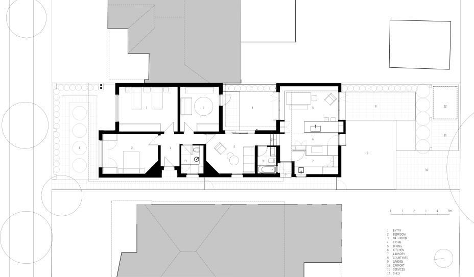
O projeto foi pensado para criar uma edícula simpática, mas eficiente, para atender às necessidades da família, ao mesmo tempo em que mantinha o caráter muito querido da casa original de dois quartos. A planta baixa existente também foi reconfigurada para fornecer um terceiro quarto, banheiro adicional e sala central.
Uma solução complexa
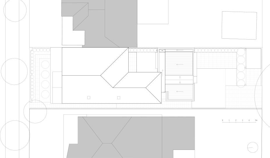
A simplicidade da extensão resultante demandou um alto nível de complexidade e multifuncionalismo que considera todos os aspectos do terreno e seus arredores. A articulação mais atraente do projeto é o uso eficiente de 45 m² de espaço adicional para acomodar confortavelmente uma nova cozinha, área de jantar e lavanderia. Capturar a luz do norte era uma prioridade para a extensão voltada para o sul. Isso foi conseguido com a introdução de um pátio central e janelas estrategicamente posicionadas.
Trazendo o exterior para dentro
A extensão parece muito maior do que realmente é, em grande parte devido ao arranjo minimalista do interior, até mesmo pela incidência de luz e a forte relação com o lado de fora. Trazer o exterior para dentro foi importante tanto para os clientes quanto para os co-fundadores do Crosshatch, Jaime Diaz-Berrio e Mark Allan, e isso foi possível através da grande janela panorâmica da área de jantar com frisos profundos e portas de vidro duplas que se abrem para o pátio central.
Este espaço verde ativo conecta o antigo e o novo e estende às áreas de estar além de seus limites, criando uma sensação de espaço. O projeto também permite a conexão visual entre os espaços, para que os pais tenham sempre uma visão clara dos filhos da cozinha, estejam eles brincando no quarto, na sala, no pátio ou no quintal.
O tetris suburbano
As formas do novo prolongamento estão dispostas em configuração tetris, sim, o jogo de encaixar as peças, expressa na planta, alçado e corte e daí veio o nome para o projeto. Os volumes interligados unem a forma e a função do antigo e do novo. O conceito tetris é ainda mais repetido através do detalhamento do interior, incluindo armários sob medida e maçanetas de cozinha personalizadas.
Respeitando o contexto
A janela de 4,5 m de altura articula o exterior e emoldura a grande árvore de eucalipto na propriedade traseira, aterrando de forma sensível a extensão e a casa existente em seu contexto suburbano. Tijolo vermelho reciclado foi usado para respeitar a paleta de materiais originais da casa, de acordo com a sobreposição de herança da área.
Cada decisão de design, desde o menor detalhe do interior até a forma geral do exterior, foi cuidadosamente considerada para alcançar uma abordagem convincente para uma vida moderna de dimensões reduzidas.
Veja na galeria todas as fotos do projeto































*Via BowerBird





