Casa com piscina: linhas retas sob o sol de Brasília
Com espécies típicas do cerrado, esse jardim é uma conquista do projeto. Nesta casa, a paisagem remete à tradição da arquitetura moderna













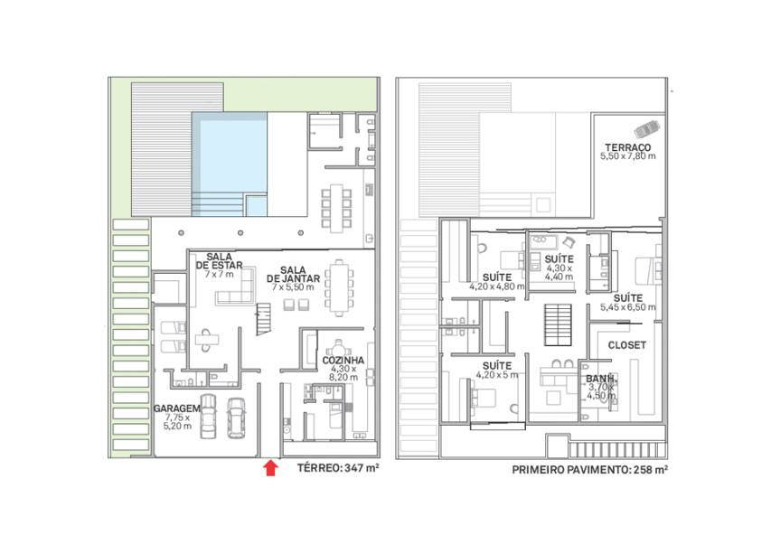
Fruto sólido do casamento entre uma mineira com profunda admiração pela arquitetura moderna e um brasiliense, esta casa não nega seu DNA. Erguida numa área residencial nos limites do plano-piloto, atende às demandas contemporâneas do casal, porém carrega referências aos cânones do movimento que delineou a cidade planejada décadas atrás. “Eu me formei na Universidade de Brasília [UnB], onde Oscar Niemeyer [1907-2012] e Lucio Costa[1902-1998] deram aulas. A escola segue os princípios defendidos por eles,que ainda hoje acho coerentes”, diz a arquiteta Patricia Almeida, autora do projeto. Assim, o terreno plano, de 640 m², viu crescer o sobrado de linhas retas e ambientes integrados, livre de enfeites, estruturado em lajes e pilares que lembram pilotis. A ênfase na racionalidade pautou algumas soluções do desenho e da obra de um ano e meio,sempre amparadas pela expertise dos engenheiros. “Pensando em simplificar,calculamos vãos amplos para clarear e arejar a construção, contudo sem exageros”, exemplifica Patricia. Curiosamente, o detalhe que coroa a ambição moderna da empreitada não está na casa, mas fora dela: o paisagismo de Ney Ururahy (1923-2013), nome que se irmanou ao do artista Athos Bulcão (1908-2008) e ao do também paisagista Roberto Burle Marx (1909-1994)na contribuição para tornar aquela nova capital mais humana. Profundo conhecedor do cerrado, ele imaginou espaços abertos e prazerosos no quintal, porém morreu antes de concluí-lo. Deixou traçados os caminhos externos, o lugar da fogueira e a pequena praça. É exatamente nesse ponto que a proprietária, Raquel Marques, costuma embalar a filha, Catarina, diante das raízes esculturais de uma árvore nativa. E filosofa: “Numa metáfora do que importa na vida, Neyme ensinou que, no paisagismo, não são apenas as plantas que fazem a diferença, mas os percursos que levam até elas”.
Vegetação nativa x secura do planalto central
Este foi um dos últimos projetos de Ney Ururahy, radicado em Brasília desde que fora convidado por Oscar Niemeyer a ajudar a conceber as áreas verdes da então nova capital federal. Impregnado dos valores que tomavam corpo na cidade nascente, Ney desenvolveu um modo próprio de fundir o paisagismo de uma edificação em sua vizinhança e cunhou sua marca registrada com jardins fluidos (sem elementos decorativos), ricos em espécies e arrematados com a presença sempre delicada da água. Também foi pioneiro ao sugerir o plantio de vegetação nativa como meio sustentável de contornar a estiagem típica do cerrado. Entre seus tipos favoritos, destacavam-se o ipê-amarelo, a palmeira-guariroba e a grama-batatais. Seu legado verde pode ser encontrado em aeroportos, hotéis, clubes e nos famosos jardins da Universidade de Brasília, do Palácio Itamaraty e das embaixadas da Inglaterra e da Itália.





