Apê dos anos 1950 fica mais funcional, integrado e com muitas plantas
O projeto é do escritório Mana Arquitetura, que garimpou móveis de brechó e reaproveitou marcenaria já existente
							
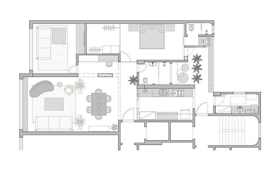
    Se quem é dos anos 1980 é cringe, quem é dos anos 1950 é o quê? No caso deste apartamento de 138 m² localizado no centro de São Paulo, malcuidado. Apesar disso, ele tinha muito potencial.
O escritório Mana Arquitetura sabia disso. Para projetar, os profissionais partiram da premissa de honrar a história do prédio e do bairro onde o imóvel está inserido e trazer esse contexto para a realidade atual da nova moradora.
    Na planta original, os dormitórios eram grandes demais, a área social pequena e compartimentada, havia apenas um banheiro e a área de serviço era enorme. Para atender as necessidades da moradora, o escritório integrou a sala de estar, a cozinha e a antiga área de serviço, que agora é o ambiente onde ela cuida das plantas e faz suas refeições diárias.
    Em busca de criar amplitude sem abrir mão de acolhimento, os arquitetos usaram divisórias de serralheria, painel de madeira e as estantes de plantas.
Veja também
- Decoração retrô colorida deixa apê de 120 m² mais alegre e despojado
 - Apê de 244 m² aposta em integração e revestimentos naturais
 
Estas últimas, posicionadas entre a sala de jantar e a de estar, foram feitas com as prateleiras de madeira maciça que eles retiraram dos antigos armários do apartamento, e pensadas especificamente para evitar um descarte desnecessário.
    As vigas foram descascadas e o painel de madeira ao fundo é multifuncional: armário, escritório e entrada para o dormitório, com porta mimetizada. Já o espelho antigo e a escada de ferro foram garimpados em um brechó próximo da obra.
    A mistura de móveis antigos com outros mais contemporâneos e as muitas plantas deixam o ambiente bem acolhedor.
Curtiu o projeto? Então veja mais fotos na galeria abaixo:



















* Via ArchDaily
 										
 										
 										
 										
 										
 										
 										
 										
 										
 										
 										
 										




