Painéis perfurados simulam folhas de árvore em casa autossustentável
Além de ser autossustentável, 90% da área total do projeto é composta por jardins e pela natureza

A Shade House (Casa de Sombra, em tradução livre) do escritório Ayutt and Associates Design (AAd) é uma residência autossustentável inserida em um ecossistema natural e revestida por uma fachada de alumínio perfurada, que permite a entrada de ventilação e de iluminação natural.

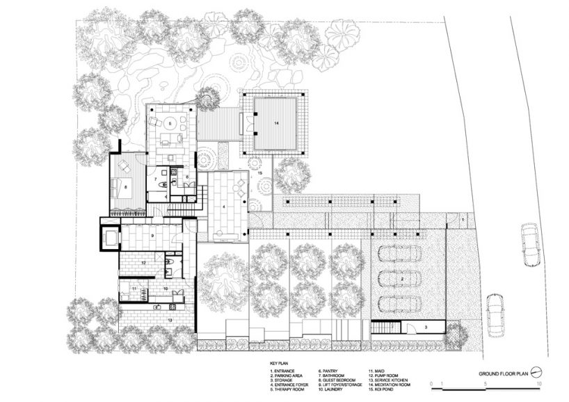
Localizado no distrito de Bang Phli, na Tailândia, o projeto pretendia, apesar da área de construção ser formidável, aproveitar mais o ambiente externo, da natureza, do que ter espaços interiores muito agigantados. Ao total, a residência possui 950 m², compreendendo três níveis, cada um dos quais é completamente independente e equipado com todas as funções necessárias para uma suíte, com banheiro, cozinha e despensa, jardim e terraço.

Com o projeto, o resultado foi de 60% a mais de metros quadrados de área verde, juntamente com a adição de plantas e vasos em todos os cantos da casa e um telhado verde. Isso fez com que esse número total de “natureza doméstica” aumentasse para 90%. “Quando a vegetação crescer totalmente e cobrir todas as elevações da casa, a área verde será 150% maior do que o inicial”, relatam os profissionais.

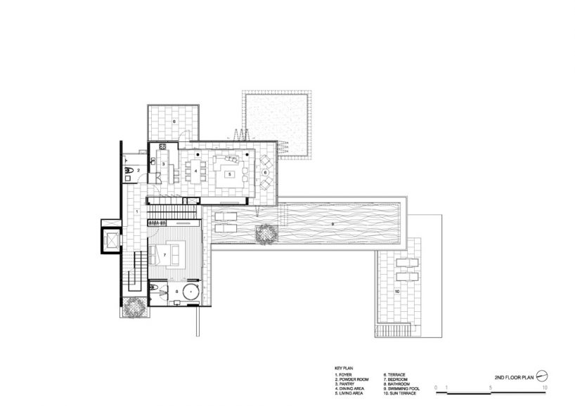
O primeiro nível é projetado como uma “vila no jardim” para os visitantes e pode ser acessado passando pelo saguão principal ou entrando na própria área por uma porta lateral. O restante dos espaços, que precisam de mais privacidade e segurança, são reservados apenas para os moradores da casa e colocados nos andares mais altos. A piscina externa foi elevada e tem acesso pelo segundo andar, junto ao espaço da família, com o intuito de deixar a área mais aberta no térreo, para paisagismo e manutenção da privacidade dos proprietários.
“Isso cria uma nova experiência sensorial de alinhar a piscina com borda infinita às nuvens e às folhas das árvores, criando uma conexão visual com o céu e além”, explica o escritório.

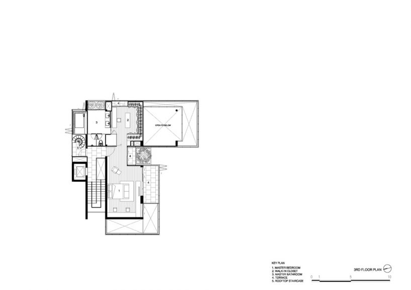
A terceira unidade da casa fica acima do dossel das árvores e tem uma vista privilegiada para uma paisagem intocada perto do aeroporto de Suvarnabhumi. Ao colocar todos os quartos nos andares superiores, a atmosfera foi transformada em um sonho de “casa na árvore”, onde folhas e arbustos, não apenas proporcionam conforto térmico para os moradores, mas também servem como um artifício de privacidade natural, protegendo a visão do interior do imóvel das pessoas que observam de fora.

O destaque de todo o projeto arquitetônico é a fachada formada por painéis de alumínio perfurados, que auxiliam na temperatura interna, além de permitir a passagem da luz solar e do ar. Durante o verão, os painéis ajudam a resfriar até 13º a menos a temperatura interior. E não para por aí. O padrão nas fachadas é perfurado de maneira criativa, imitando as folhas das árvores sobrepostas, criando um efeito semelhante ao sentar-se debaixo de uma árvore e absorver a luz do sol que brilha através das camadas das folhas.

Os tamanhos dos furos também são determinados de acordo com o uso da função interna. À noite, quando as luzes interiores brilham através dos buraquinhos, os espaços se transformam em uma lanterna, percorrendo o caminho de toda a casa.

Outro elemento que não pode passar sem ser notado são as hastes brancas de aço que, unidas, são apresentadas como uma estrutura rígida esculpida – formam volumes geométricos que criam uma conexão imediata da escada de entrada com o hall principal da casa.
Veja mais fotos e a planta do projeto:








