Designers criam cabana de madeira portátil
Projekt Datscha é uma pequena casa de madeira sobre rodas, construída para minimalistas e amantes da natureza
As designers Anna Busch e Monika Binkowska apresentam Projekt Datscha, uma pequena casa de madeira sobre rodas, construída para minimalistas e amantes da natureza. O nome remete às dachas, palavra russa para casas de campo. Atualmente montada em Steiermark, na Áustria, a cabana pode ser transportada para qualquer local desejado, ao mesmo tempo em que oferece aos usuários um ambiente confortável, aconchegante e totalmente equipado.
Para Projekt Datscha, Busch e Binkowska queriam projetar uma casa pré-fabricada que ainda apresentasse um design exclusivo e personalizável. Para obter a permissão de reboque, a estrutura deveria atender aos mesmos requisitos legais de uma carreta de caminhão, em termos de altura, largura e peso máximos.
A estrutura de madeira e os suportes de metal fornecem à cabine a integridade estrutural necessária para resistir a ventos contrários de 120 km/h durante o reboque. Para ficar dentro do limite de peso permitido de 3,5 toneladas, foram utilizados apenas materiais de construção leves, como janelas de alumínio, isolantes PIR e compensados de balsa.
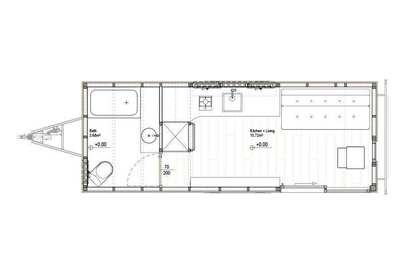
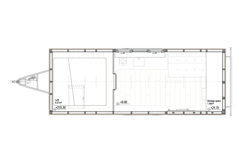
Um dos maiores desafios de projetar uma casa com apenas 4 m de altura e 2,55 m de largura foi encaixar todas as funções desejadas em um espaço tão restrito.
O interior de 18 m² possui uma área de estar principal com cozinha, mezanino e banheiro equipado com banheira. Para economizar espaço, as designers instalaram uma mesa dobrável sob medida e um sofá-cama, mas evitaram outros móveis transformáveis, pois tendem a ser pouco práticos.
A casa possui um sistema de aquecimento infravermelho inteligente e caldeira de água, que requer conexão à eletricidade. Caso não haja energia, a casa ainda pode funcionar fora da rede, graças ao fogão a álcool e ao banheiro de compostagem sem cheiro.
A estrutura é arrematada por telhado de duas águas, já que é a representação mais emblemática de uma casa. Todos os elementos externos, como calhas de chuva e coberturas de janela, estão bem ajustados, criando uma forma minimalista e elegante.
A casa usa cores claras e vivas e se integra harmoniosamente no ambiente natural. Grandes janelas permitem que a luz penetre o interior, enquanto a abertura no telhado permite que os ocupantes observem as estrelas à noite. Esta casa pequena, porém espaçosa, é ideal para duas pessoas, embora possa acomodar confortavelmente até quatro. Projekt Datscha estará disponível para aluguel a partir da primavera de 2021, no hemisfério norte.
Veja todas as fotos do projeto na galeria abaixo!












Apartamento tem cozinha com ilha que pode ficar integrada ou não





