Sobrado aberto para os amigos e os pets
Dos tijolos descascados à porta antiga, passando por peças de família, detalhes espalhados por este sobrado revelam histórias sobre os moradores.
“Sabe aquelas mães que só falam dos filhos? Eu, nos últimos tempos, só falei de casa!”, brinca Cristina Genaro, abrindo um sorriso, feliz da vida por estar morando com o marido, Fernando Gallo, o cachorro Elvis e a gata Priscila num sobrado de 245 m² na cobiçada Vila Madalena. A saga para chegar até ele começou no fim de 2012, quando o casal iniciou as buscas por um lugar possível de reformar (construir do zero não era a intenção).
Enquanto Cristina sonhava com janelas amplas, um jardim gostoso e muito espaço externo para os bichos correrem livres, Fernando enfatizava a presença de uma sala com projetor e uma garagem que comportasse, sem muitas manobras, os carros deles e dos amigos. Com esses desejos um tanto vagos em mente, foram colecionando alguns itens para a futura casa ainda durante a fase de visitas aos imóveis candidatos, na qual já contavam com a ajuda do am.studio, escritório dos arquitetos Mariana e André Weigand, seus amigos de longa data. Garimparam uma porta de madeira – que, depois, precisou de alguns ajustes para caber em seu vão –, recuperaram uma pia vintage numa demolidora e vários objetos pertencentes à família. “São coisas que me davam muito aconchego na infância”, conta a dona.
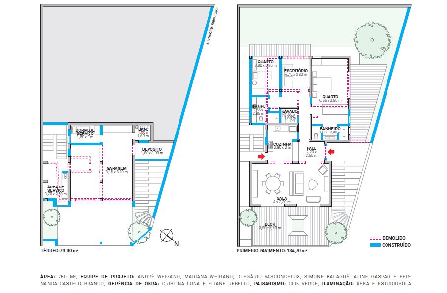
Depois de inúmeras vistorias e aquisições, o terreno de 337 m², de esquina, enfim venceu a concorrência. “A construção se encontrava bastante judiada, mas possuía uma estrutura bacana e era bem iluminada. Uma escada levava da garagem ao pavimento superior, que concentrava toda a parte vital, como numa casa térrea”, explica a arquiteta.
O primeiro ano de obras se deu de maneira atribulada, pois o casal teve problemas por duas vezes com os empreiteiros contratados no processo. Quando uma dupla de profissionais assumiu a gerência dos trabalhos, a reforma terminou em cinco meses. Na renovação, poucas paredes vieram abaixo a fim de integrar cozinha e hall com o estar, dois quartos unidos formaram a suíte e um terceiro cedeu alguns de seus metros ao escritório e ao dormitório de hóspedes. Todo o restante do piso superior surgiu com o intuito de aproveitar um corredor lateral sem uso.
Além dessa, houve outra ampliação, considerada o grande trunfo do projeto: o deck descoberto de 3,80 x 7,70 m sobre a garagem, cenário de deliciosos brunchs junto ao estar, à sombra da árvore plantada na calçada. “Ao trocarmos as janelas tradicionais por portas-balcão, conseguimos trazer o exterior para dentro”, acrescenta Mariana. A mesma sensação se faz presente em todos os quartos, abertos para o vistoso jardim que domina os fundos e a lateral do terreno, cujo aclive foi nivelado para favorecer a circulação externa. “Mudamos há pouco mais de um ano e as pessoas estão começando a reclamar que a gente não sai. No fim, todo mundo acaba aqui. É uma casa de festa, sempre cheia de gente”, conclui a proprietária.


















