Apartamento de 57 m² com tons neutros e marcenaria inteligente

Livre do segundo quarto, o endereço de um solteiro conquistou uma sala de estar mais espaçosa, com lugar até para o home office

Por Cristiane Teixeira 5 set 2017, 17h17 • Atualizado em 9 set 2021, 12h34
Apartamento de 57 m² com tons neutros e marcenaria inteligente
Prateleiras em L, escrivaninha e gaveteiro compõem o home office vizinho à sala.  (Divulgação/Eduardo Pozella)
Continua após publicidade
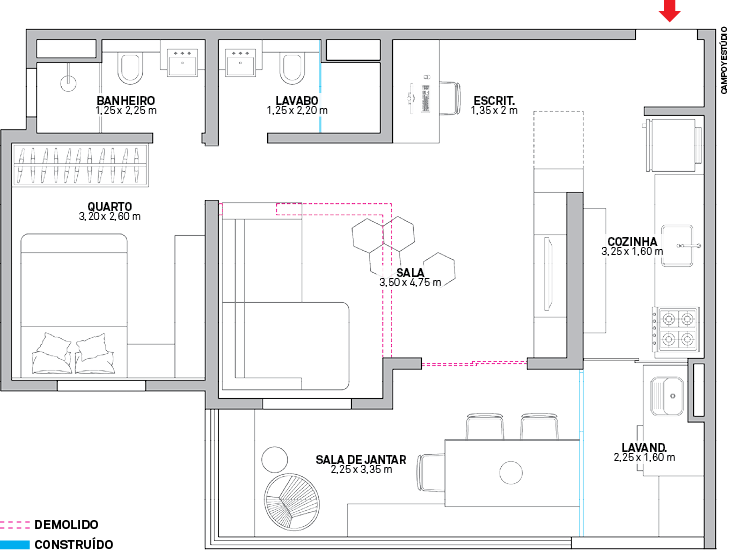
  • O segundo quarto era tão dispensável para o comprador do apartamento que enquanto a obra subia no bairro de Pinheiros, em São Paulo, o rapaz pediu à construtora para não levantar as paredes que o delimitariam.

    Por outro lado, os 5,60 metros quadrados do cômodo eram mais que bem-vindos à ampliação da área social. “O morador é um jovem advogado que trabalha muito”, conta a arquiteta Duda Senna, contratada para personalizar o imóvel.

    “Depois de explicar que desejava um endereço confortável, com marcenaria sofisticada, muito branco e cinza, ele me delegou 100% da criação do projeto.”

    Apartamento de 57 m² com tons neutros e marcenaria inteligente
    Os vãos da estante foram dimensionados para comportar objetos, bebidas e equipamentos, como uma adega climatizada (à dir.). As ferragens permitem abrir e fechar a bancada conforme o momento. Ela funciona como base para expor livros de receitas, apoiar ingredientes da geladeira e servir um vinho. (Divulgação/Eduardo Pozella)

    O edifício com 16 andares foi erguido com alvenaria estrutural: como não existem pilares para sustentar o peso da construção, as paredes cumprem esse papel, por isso levam blocos especiais. “As divisórias do segundo quarto eram as únicas sem função estrutural. Eu não podia derrubar mais nada”, afirma a arquiteta.

    O que ela podia fazer – e fez – foi retirar as portas da varanda para melhor aproveitar a área, que acolheu a mesa de jantar.

    Continua após a publicidade
    Apartamento de 57 m² com tons neutros e marcenaria inteligente
    Duda projetou um longo banco de madeira rente à face envidraçada da varanda, criando mais lugares à mesa. Na sala, paredes pintadas de tinta acrílica (Suvinil, ref. Crômio). A porta que comunicava o ambiente de estar e a varanda foi dispensada e o piso nivelado. Assim, a área externa tornou-se uma sala de jantar generosa. (Divulgação/Eduardo Pozella)

    Leia também: Apartamento pequeno: projeto garantiu aconchego e elegância

    A decisão abriu lugar para um organizado home office próximo à entrada do apê e à estante embutida que é ao mesmo tempo bar e home theater.

    Apartamento de 57 m² com tons neutros e marcenaria inteligente
    Por ser a área reduzida, a arquiteta preferiu cobrir todos os ambientes com as mesmas placas de 90 x 90 cm do porcelanato Matiz Grigio, da linha Concretíssyma, da Portobello. (Divulgação/Eduardo Pozella)
    Continua após a publicidade

    Do lado oposto dessa divisória, a cozinha repete os acabamentos principais da marcenaria: nogueira-americana e laca branca.

    Apartamento de 57 m² com tons neutros e marcenaria inteligente
    Acima do tampo da pia, feito de quartzo branco (Ariston Mármores e Granitos), a superfície recebeu revestimento Metrô White, de 10 x 20 cm (Eliane). (Divulgação/Eduardo Pozella)

    Há também o MDF laqueado de cinza, que finaliza nichos como os das garrafas de vinho.

    Apartamento de 57 m² com tons neutros e marcenaria inteligente
    A estreita bancada branca pode ser dobrada para baixo, desobstruindo a passagem. (Divulgação/Eduardo Pozella)
    Continua após a publicidade

    Leia também: 15 adegas para espaços pequenos que roubam a cena

    Outros tons acinzentados tingem as paredes, o painel do quarto e o chão de porcelanato – o revestimento cobre os 57 metros quadrados do imóvel. Duda explica: “Para mim, aplicar um só piso propicia a sensação de amplidão, porque você não vê limites entre os cômodos”.

    Outra escolha importante para o bem-estar no apartamento foi rebaixar o teto com gesso. O forro permitiu esconder a tubulação do ar condicionado que refresca a sala e o quarto e, ainda, deu flexibilidade à proposta luminotécnica.

    Apartamento de 57 m² com tons neutros e marcenaria inteligente
    Desenhada pela arquiteta, a cama – que foi encostada na parede a fim de aumentar a área de circulação – oferece gavetões e nichos. Sob a testeira cinza, uma fita de led destaca o painel para quadros. (Divulgação/Eduardo Pozella)
    Continua após a publicidade

    “Embutindo os spots em diversos pontos, consegui criar variadas cenas com as lâmpadas dicroicas”, diz a autora, que completou o projeto com pendentes e luz indireta.

    Publicidade
    TAGS: